![]() |
黑龍江(jiāng)省哈爾濱(bīn)黑河市私家整體酒窖設計
|
| 案(àn)例詳(xiáng)情: | |
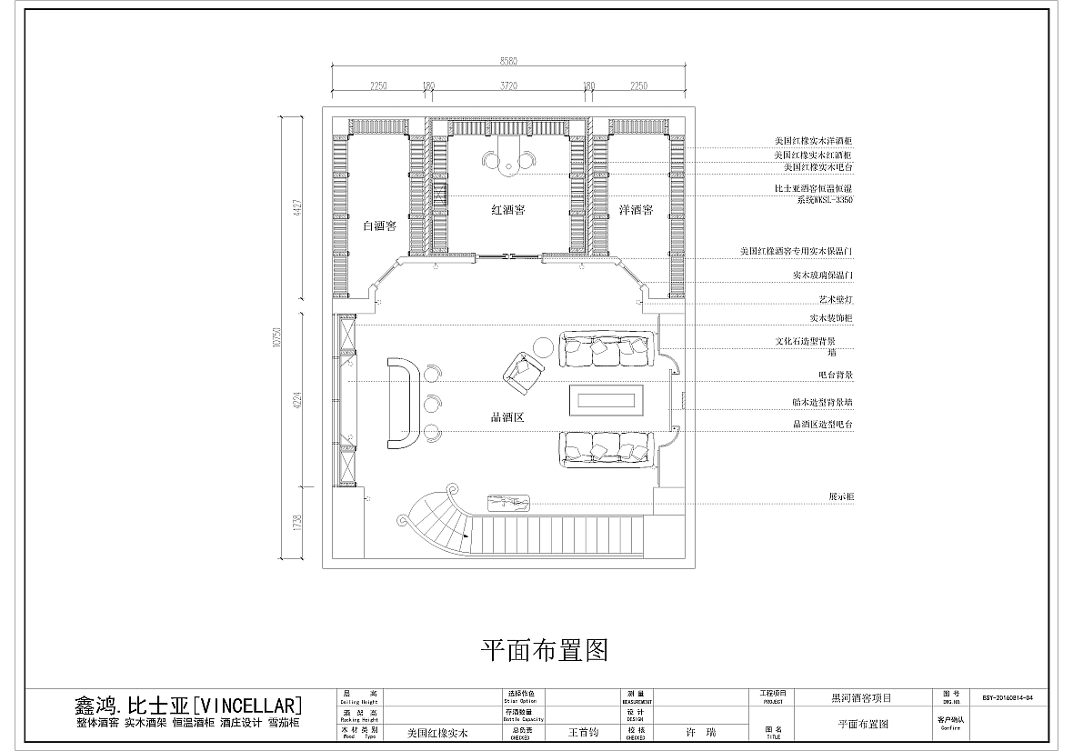
黑龍江省黑河市(shì)私家整(zhěng)體酒窖設計-平麵布置圖
黑龍江省(shěng)黑河市私家整(zhěng)體酒窖設計-E立麵布置圖 黑龍江省黑河市私家(jiā)整體酒窖設計-B立(lì)麵布(bù)置圖
黑龍江省(shěng)黑河(hé)市私家整體酒窖設計-酒窖設計效果圖A
黑龍江省黑河市私家整體(tǐ)酒窖設計(jì)-酒窖設計效果圖B
|
|
| 上一篇:太原(yuán)鑫東(dōng)方酒店酒窖設計方案及酒窖設計效果(guǒ)圖 下(xià)一篇:吉林長春森(sēn)林華墅私(sī)家整體酒窖(jiào)設計製作完成酒窖圖片 | |
深圳市鑫鴻.17c嫩嫩草色视频酒窖文化傳播有限公司(sī)
地址:深圳市寶安區鶴洲聚寶工業區7棟
電話:400-1880365 13828826558
郵(yóu)箱:520130588@qq.com

