400-1880365 13828826558
當前位置(zhì):首(shǒu)頁 / 工程案例
佛山三水希爾頓歡(huān)朋酒店酒窖恒溫恒濕機空(kōng)調工程設計(jì)安裝圖(tú)片(piàn)
設計師:劉曉鑫
客戶名稱: 佛山三水(shuǐ)希爾頓歡(huān)朋(péng)酒店
項目(mù)地址: 佛山三水
設計公司: 項目簡介(jiè): 廣州[.17c嫩嫩草色视频]酒櫃(guì)酒窖(jiào)空調工程(chéng)設計定製定做(zuò)廠家公司為佛山三水希爾(ěr)頓歡朋酒店酒窖恒溫恒濕機空調工程設計安裝圖片(piàn)
  案例詳情:

佛山三水希爾頓歡朋酒店酒窖恒溫(wēn)恒濕機空調工程設計安裝圖片

酒窖效果圖

酒窖設計方案

酒窖平麵布置圖

酒窖(jiào)A立麵布置圖(tú)

酒窖(jiào)恒溫恒濕機布置圖

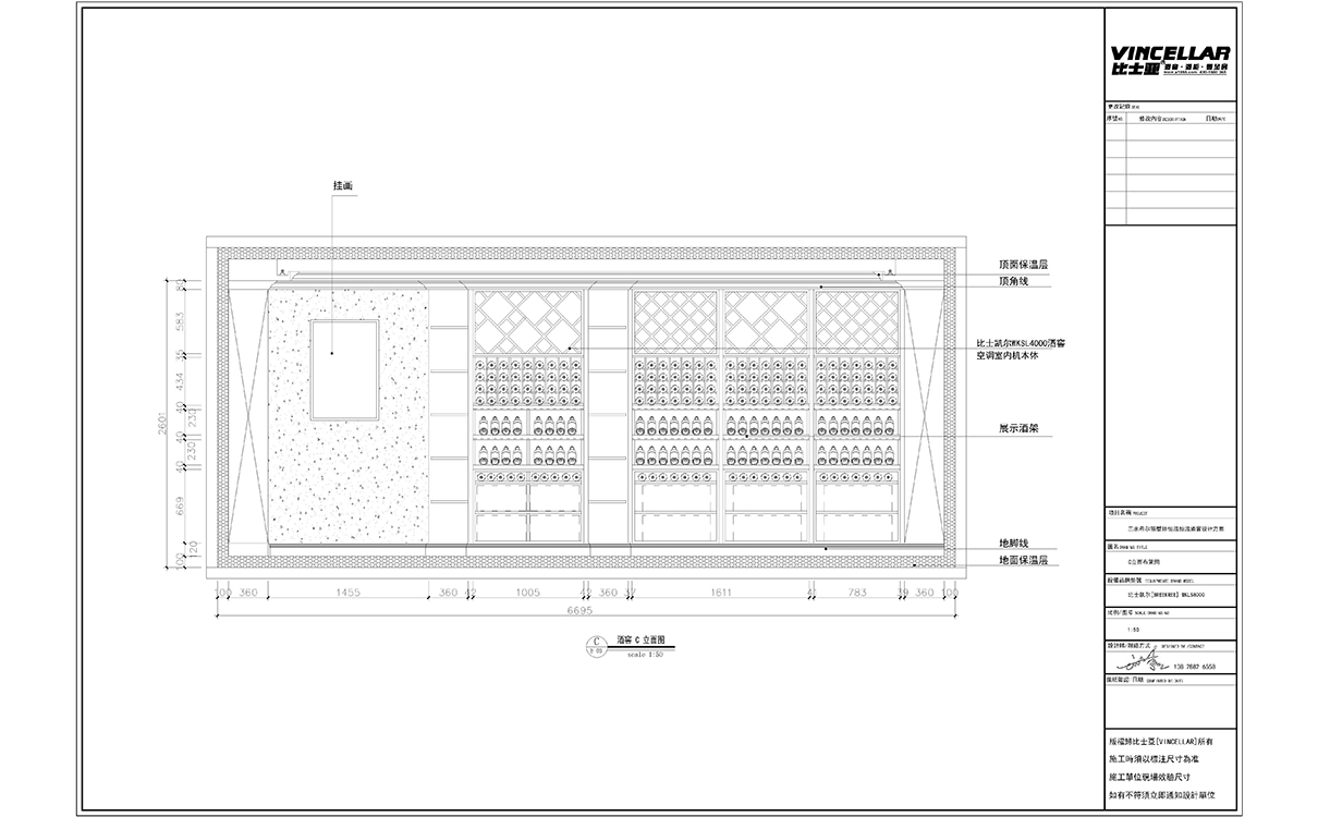
酒窖C立麵布置圖

巴西花梨木實木酒架

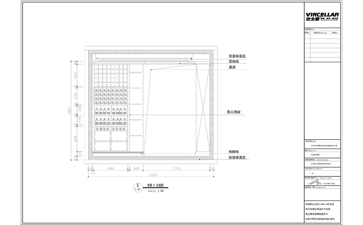
酒窖E立麵布置圖

酒窖F立麵布置圖

酒窖圖片

酒窖恒溫恒濕機(jī)圖片

巴(bā)西花梨木實木(mù)酒(jiǔ)架圖片

.17c嫩嫩草色视频[VINCELLAR]公司現場工(gōng)作(zuò)人(rén)員(yuán)




.17c嫩嫩草色视频[VINCELLAR]公司酒窖設計師


上一篇:廣州從化(huà)億城(chéng)泉說私人別墅酒窖效果圖與酒窖空調設計    下一篇:浙江杭州湖畔花園別墅酒窖設計方案效(xiào)果圖(tú)與酒窖空調工程完工(gōng)圖片
聯係我們

深圳市鑫鴻.17c嫩嫩草色视频酒窖文化傳播有限公司
地址:深圳市寶安區鶴洲聚寶工業區7棟
電話:400-1880365   13828826558
郵箱:520130588@qq.com

深圳市鑫(xīn)鴻.17c嫩嫩草色视频酒窖文化傳(chuán)播(bō)有限公司
地址:深圳(zhèn)市福田區園嶺(lǐng)街道上林社區八卦三路88-8號清鳳榮盛創投大廈(xià)303
電話(huà): 400-1880-365 13828826558 E-mail:520130588@qq.com QQ:520130588
Copyright © 2006-2019深圳市鑫鴻比(bǐ)士亞酒窖文化傳播有限公司 版權所有 
粵ICP備12040261號 
掃(sǎo)一掃,關注我們
网站地图 .17c嫩嫩草色视频-嫩草 17.C 91-一起草 www.17c.com-www.17c嫩嫩草色蜜桃网站